由于該產品已進行多次功能升級和更新迭代,我們不保證Cruiser系列大型零部件精密檢測三坐標測量機提供的圖片和各項參數等信息均為最新,我們建議您點擊此處聯系我們的在線工程師為您服務,同時我們也歡迎您電話咨詢:!
Cruiser系列三坐標測量機,是大型的高性能數控坐標測量機。
通過采用計算機輔助設計、有限元分析、動態特性分析、全空間誤差軟件補償等先進手段與方法,制造出具有優良剛性與穩定性的新一代數控坐標測量機。
Cruiser系列三坐標測量機適合在大型產品生產現場或計量中心對各種機械零部件的尺寸和形位公差進行精密檢測,從而完成零件檢測、外形測量、逆向工程、過程控制以及質量管理等任務。
Cruiser系列三坐標測量機采用高架橋L型結構設計,在保證空間開敞的同時確保了測量機的穩定性和優良的驅動性能,能夠實現較高的運行及測量速度,使測量機在運行中的角擺、垂直度變形達到Zui小化,保證了測量機的高精度。
Cruiser系列三次元、三坐標測量機主導軌采用槽型截面設計,空氣軸承按封閉式靜壓導軌布局,增大了氣膜剛性,提高了X向氣浮導軌的精度。
Cruiser系列三坐標測量機工作臺、三次元、三軸導軌及立柱均選用優質花崗巖,熱穩定性好、硬度高、耐磨性好,整機具有優良的穩定性。
Cruiser系列三坐標測量機、三次元測量機可配置RENISHAW公司全系列觸發式及接觸式掃描測頭,也可配置LS系列激光掃描機線測頭、高精度激光掃描機點測頭實現復雜曲面高速掃描(逆向工程)等任務。
?
由于該產品已進行多次功能升級和更新迭代,我們不保證Cruiser系列大型零部件精密檢測三坐標測量機提供的圖片和各項參數等信息均為最新,我們建議您點擊此處聯系我們的在線工程師為您服務,同時我們也歡迎您電話咨詢:!

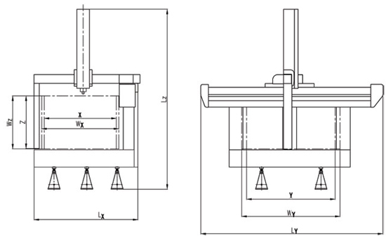
Cruiser系列三坐標測量機性能指標
| MODEL 型號 | STROKES | MEASURING ACCURACY 精度指標 | OVERALL SIZE | WORK ENVELOPE | WEIGHT 系統凈重 | PART WEIGHT 被測工件Zui大重量 | |||||||||
| 行程范圍 | ISO10360-2:2001/GB/T16857.2-2006 | 主機外廓尺寸 | 允許工件尺寸 | ||||||||||||
| X | Y | Z | S | P | Lx | Ly | Lz | Wx | Wy | Wz | |||||
| mm | mm | mm | MPEE(um) | MPEP(um) | MPEE(um) | MPEP(um) | mm | mm | mm | mm | mm | mm | kg | kg | |
| NCL151510 | 1500 | 1500 | 1000 | 3.5+3L/1000 | 3.8 | 2.5+3L/1000 | 2.5 | 2700 | 3300 | 3700 | 1700 | 1700 | 1200 | 8100 | 3000 |
| NCL152010 | 1500 | 2000 | 1000 | 3.5+3L/1000 | 3.8 | 2.5+3L/1000 | 2.5 | 2700 | 3800 | 3700 | 1700 | 2200 | 1200 | 9300 | 3000 |
| NCL152510 | 1500 | 2500 | 1000 | 3.5+3L/1000 | 3.8 | 2.5+3L/1000 | 2.5 | 2700 | 4300 | 3700 | 1700 | 2700 | 1200 | 10500 | 3000 |
| NCL153010 | 1500 | 3000 | 1000 | 3.5+3L/1000 | 3.8 | 2.5+3L/1000 | 2.5 | 2700 | 4800 | 3700 | 1700 | 3200 | 1200 | 11400 | 3000 |
| NCL153510 | 1500 | 3500 | 1000 | 3.5+3L/1000 | 3.8 | 2.5+3L/1000 | 2.5 | 2700 | 5300 | 3700 | 1700 | 3700 | 1200 | 12000 | 3000 |
| NCL15XX10 | 1500 | XX | 1000 | from 3.5+3L/1000 | from 3.8 | from 2.5+3L/1000 | from 2.5 | 2700 | XX | 3700 | 1700 | XX | 1200 | XX | XX |
| NCL152012 | 1500 | 2000 | 1200 | 4.0+4L/1000 | 4.5 | 2.9+3L/1000 | 3.0 | 2700 | 3800 | 4100 | 1700 | 2200 | 1400 | 9800 | 3000 |
| NCL152512 | 1500 | 2500 | 1200 | 4.0+4L/1000 | 4.5 | 2.9+3L/1000 | 3.0 | 2700 | 4300 | 4100 | 1700 | 2700 | 1400 | 10900 | 3000 |
| NCL153012 | 1500 | 3000 | 1200 | 4.0+4L/1000 | 4.8 | 2.9+3L/1000 | 3.0 | 2700 | 4800 | 4100 | 1700 | 3200 | 1400 | 11500 | 3000 |
| NCL153512 | 1500 | 3500 | 1200 | 4.0+4L/1000 | 4.8 | 2.9+3L/1000 | 3.0 | 2700 | 5300 | 4100 | 1700 | 3700 | 1400 | 12100 | 3000 |
| NCL15XX12 | 1500 | XX | 1200 | from 4.0+4L/1000 | from 4.5 | from 2.9+3L/1000 | from 3.0 | 2700 | XX | 4100 | 1700 | XX | 1400 | XX | XX |
| NCL152015 | 1500 | 2000 | 1500 | 4.5+4L/1000 | 5.0 | 3.8+3L/1000 | 3.8 | 2700 | 3800 | 4650 | 1700 | 2200 | 1700 | 10000 | 3000 |
| NCL152515 | 1500 | 2500 | 1500 | 4.5+4L/1000 | 5.0 | 3.8+3L/1000 | 3.8 | 2700 | 4300 | 4650 | 1700 | 2700 | 1700 | 11300 | 3000 |
| NCL153015 | 1500 | 3000 | 1500 | 4.5+4L/1000 | 5.0 | 3.8+3L/1000 | 3.8 | 2700 | 4800 | 4650 | 1700 | 3200 | 1700 | 12200 | 3000 |
| NCL153515 | 1500 | 3500 | 1500 | 4.5+4L/1000 | 5.0 | 3.8+3L/1000 | 3.8 | 2700 | 5300 | 4650 | 1700 | 3700 | 1700 | 14000 | 3000 |
| NCL15XX15 | 1500 | XX | 1500 | from 4.5+4L/1000 | from 5.0 | from 3.8+3L/1000 | from 3.8 | 2700 | XX | 4650 | 1700 | XX | 1700 | XX | XX |
| NCL163015 | 1600 | 3000 | 1500 | 4.8+5L/1000 | 5.0 | 4.5+3L/1000 | 4.5 | 2800 | 4800 | 4650 | 1800 | 3200 | 1700 | 13200 | 3000 |
| NCL163515 | 1600 | 3500 | 1500 | 4.8+5L/1000 | 5.0 | 4.5+3L/1000 | 4.5 | 2800 | 5300 | 4650 | 1800 | 3700 | 1700 | 15000 | 3000 |
| NCL16XX15 | 1600 | XX | 1500 | from 4.8+5L/1000 | from 5 | from 4.5+3L/1000 | from 4.5 | 2800 | XX | 4650 | 1800 | XX | 1700 | XX | XX |
電源電壓(Power Voltage):220V 溫度范圍(Temperature Range):18-22℃
空氣壓力(Air Pressure):0.7-1.0Mpa 溫度變化(Hourly Temperature Cycle):1℃/h
過濾精度(Filter Accuracy):0.3μm 溫度梯度(Thermal Gradient):1℃/m
空氣流量(Air Supply):0.12-0.45m3/min 濕度范圍(Relative Humidity):55%-65%